Fern Street Bath
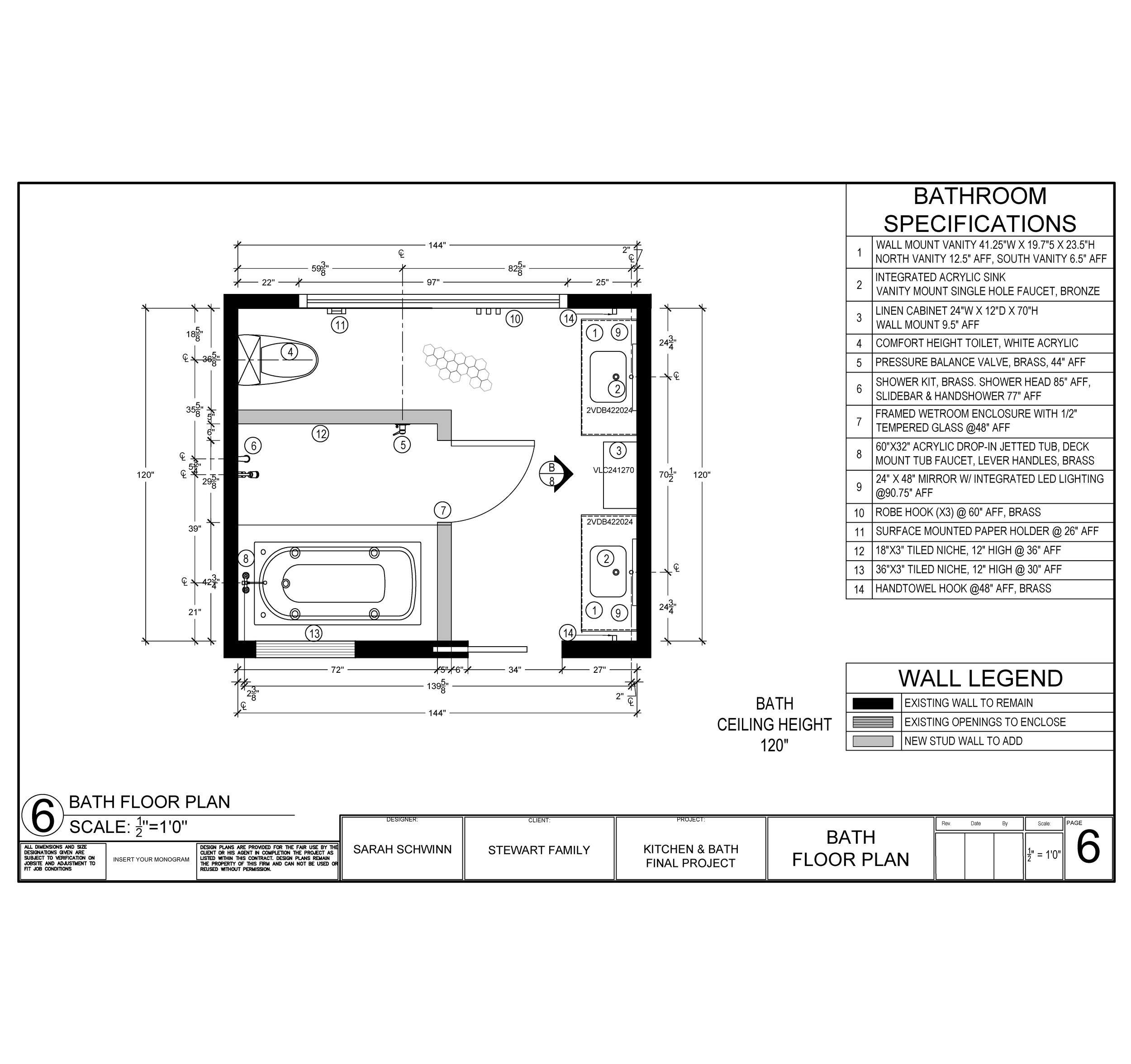
A soothing modern retreat away from it all. Requirements included jetted tub, 2-person shower, privacy around toilet, plenty of natural sunlight and separate vanities at differing heights.
A soothing modern retreat away from it all. Requirements included jetted tub, 2-person shower, privacy around toilet, plenty of natural sunlight and separate vanities at differing heights.